BILTMORE APARTMENTS
3540 N. Meridian Street, Indianapolis, IN 46208
| Rental Rate** | BD / BA | Pets Welcome? | Deposits Starting at |
|---|---|---|---|
| $715 | Studio / 1BA | Yes | $500 |
| $734-$794 | 2BD1BD / 1BA / 1BA | Yes | $500 |
| $935 | 2BD / 1BA | Yes | $500 |
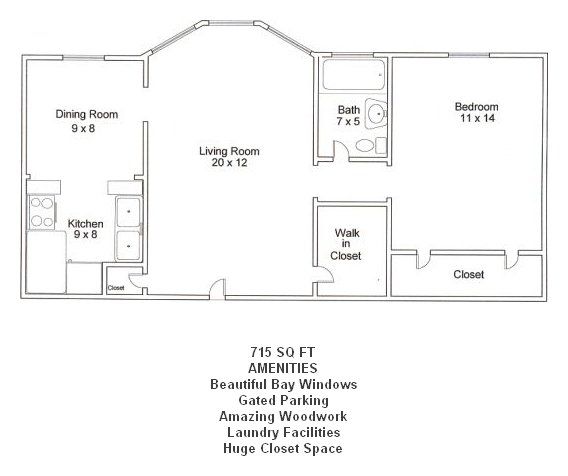
**Rental Rates are subject to change
Property Information
Biltmore Apartments
Completely Remodeled! Beautiful Bay Windows, High Ceilings and French Doors!
Features
- Reserved Parking
- 24 Hour Emergency Maintenance
- Great Oak Hardwood Floors
- Mini Blinds
- Laundry Facilities
- Amazing Historical Charm
- Abundant Closet Space
- Very Spacious & Bright
- High Ceilings
- Bay Windows & French Doors
- Gated Parking
- Keyed Entries
- Central Heat & Air
- Floor to Ceiling Windows
- Updated Kitchens
- Dishwashers
- Pets Welcome!
- Children’s Museum Neighborhood Club – Free Children’s Museum Membership!
Neighborhood
- IUPUI
- Butler University
- Broad Ripple
- Indianapolis Public Library
- Lucas Oil Stadium
- Circle Center Mall
- Metro Bus Line
- Banks
- Theaters & Museums
- Indianapolis Zoo
- Conseco Fieldhouse















